Yksilöllisyyttä ja muunneltavuutta Kastellilta

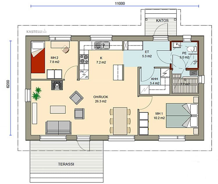
Plazia 139 P
Joustavan rakentamisjärjestelmän ansiosta pohjaratkaisuista on saatu toimivia ja arkkitehtien suunnittelemat yksityiskohdat ovat helposti toteutettavissa. Käytännöllisyydestä ei ole tarvinnut tinkiä, vaan koko suunnitteluvoima on voitu suunnata toimivuuden, asumisviihtyisyyden ja arkkitehtonisen ilmeen hiomiseen. Hyvin suunniteltu talomalli säästää myös rakennuskustannuksia, kun turhat neliöt jäävät pois.
Joustavasti muunneltavissa
Vaikka lähtökohta on useimmin Kastellin valmis talomalli, kahta aivan samanlaista taloa ei ole. Lukuisilla valmiiksi mietityillä vakiomuunnoksilla, yksilöllisillä sisustusvalinnoilla ja Kastellin arkkitehtien avulla saadaan jokaisen asukkaan toiveet yksilöllisesti huomioitua.
Modernia mallistosuunnittelua
Woodpecker-mallisto antaa monipuoliset mahdollisuudet rakentaa koti siten, että auringon suoma valo ja lämpö voidaan hyödyntää asumisviihtyisyyden ja energiatalouden kannalta optimaalisesti.
Plazian suosio perustuu kodin sydämenä toimivaan olokeittiöön, korkeiden ikkunoiden tuomaan valoisuuteen ja rentoutumiselle luotuun saunaosastoon. Keittiön, ruokailutilan ja olohuoneen muodostama upea kokonaisuus on avara ja tarjoaa mukavat puitteet perheen yhteisille hetkille.
Plazia-kodin saa alkaen 49 301 € (peruspaketti) tai 178 940 € (Muuttovalmis). Woodpecker-malliston kodin saa alkaen 69 900 € (peruspaketti) tai 240 735 € (Muuttovalmis).

Edullista rakentamista ja laajennusvaraa
Verso on koti, jossa on kaikki mitä nuoressa kodissa tarvitaan eikä mitään ylimääräistä. Se on edullinen ja ekologinen. Verso soveltuu muunneltavuutensa ansiosta erilaisiin elämäntilanteisiin, kodiksi eri-ikäisille pariskunnille ja perheille.
Verson saa kodiksi alkaen 42 273 € (peruspaketti) ja 133 082 € (Muuttovalmis).

Lisätilaa yläkertaan
Nuoren perheen rakentaessa omakotitaloa, on hyvä huomioida myös tulevaisuuden laajennustarpeet. Useimpien Kartano-mallien tilavasta yläkerrasta saa helposti ja edullisesti lisätilaa, jonka voi sisustaa käyttöön heti alkuvaiheessa tai vasta myöhemmin perheen tilatarpeiden mukaan.
Kartano-malli on hinnaltaan alkaen 48 962 € (peruspaketti) ja 174 046 € (Muuttovalmis).

Kastelli Economy – aito Kastelli-koti minihintaan
Erityisen hyvin se sopii juuri ensimmäisestä omakotitalosta haaveileville tai perheille, jotka eivät halua laittaa kaikkia rahojaan kiinni asumiseen. Laajasta mallistosta löydät sopivan näköisen ja kokoisen kodin omaan makuusi.
Economy-malliston edullisuus perustuu selkeisiin pohjaratkaisuihin, Kastellin saamiin suurostoetuihin sekä huolelliseen ennakkosuunnitteluun. Talon jokainen rakennusvaihe on käyty yksityiskohtaisesti arkkitehtuuriltaan läpi. Sähkö- ja LVI-ratkaisut on tehty laadukasta perustasoa noudattaen.
Economy-malleissa on Kastellin laadukkaat ja energiatiiviit rakenteet, arkkitehtien hiomat pohjaratkaisut sekä hintaluokkansa paras varustelu.
Economy-mallisto alkaen 37 855 € (peruspaketti) ja 12 202 € (muuttovalmis).

Laadukkaasti muuttovalmiiksi
Valitessaan Muuttovalmiiksi rakennetun Economy- talon, asiakas saa ensiluokkaisen kodin ammattilaisten rakentamana ja sisustamana erittäin edulliseen Economy-hintaan. Laadustaan kiitetty Muuttovalmis Kastelli rakennetaan turvallisesti ja ammattitaidolla. Näin muuttoaikataulu ja kodin kokonaishinta on jo projektin alussa tiedossa.
Kastelli tekee perustukset ja rakentaa talon valmiiksi viimeistä listaa myöten (kirvestyöt, talotekniikka, muuraukset, kaluste- ja koneasennukset, sisustus). Kastellin tavalla rakentaen saadaan lämpimät, energiatiiviit ja oikeaoppiset rakenteet. Lisäksi työlle ja materiaaleille on kattava Kastelli-takuu.
Muuttovalmiiksi rakennettaessa asiakas itse vastaa tontista, perustusta edeltävistä töistä ja velvollisuuksista, maatöistä, liittymistä, siivouksesta ja pienistä aputöistä. Muuton jälkeen asiakkaalle jää vielä talon lopullinen maalaus ja pihatyöt.
Pienet talot
Onko haluamasi talomalli liian suuri kooltaan? Pienistä taloista löytyy oma kokoelmansa Kastellin mallistosta.













