Tarjolla pieniä, variaatioita ja uusia pohjaratkaisuja
Pientä tai muunneltua

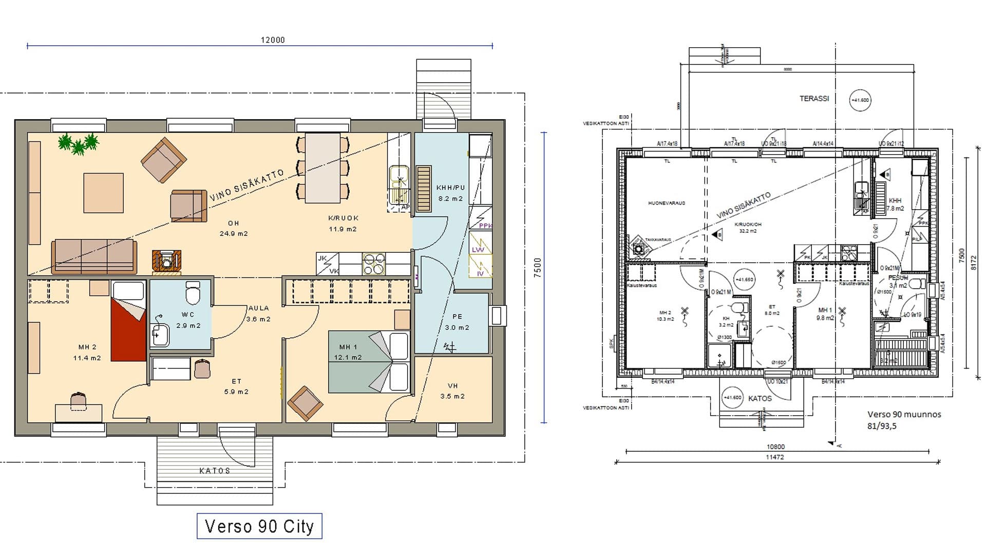
Kastelli Verso 90.
Onko mieleinen pohjaratkaisu hakusessa? Eivätkö valmiit pohjat ole aivan sitä, mitä haet? Tutustu Kastellin variaatioihin eri pohjaratkaisuista. Jos vaikka Verso 90 on muuten juuri se pohja, jonka haluaisit, mutta... Klikkaa itsesi Luonnospankkiin ja katso, minkälainen on Verso 90 muunnos.
Onko haluamasi talomalli liian suuri kooltaan? Pienistä taloista löytyy oma kokoelmansa Kastellin mallistosta.

Kaarna-mallisto suoraan Suomen luonnosta
Uutta Kaarna-mallistoa voi parhaiten kuvailla sen suunnittelija, arkkitehti Eva-Maria Ylönen. Hän tekee sen sekä TUNTEELLA:
- Sain inspiraatiota Kaarnaan luonnosta, tummasta metsästä ja puusta, pitkistä suomalaisista perinteistä selkeästi nykyaikaan tuotuna. Kaarna on ulkomuodoltaan vähäeleinen ja selkeä, mutta silti paljon puhuva. Kaarnalla on tuttu perinteisen talon leikkausmuoto, mikä näkyy myös sisätiloissa.
että JÄRJELLÄ:
- Uusi Kaarna on suunniteltu asumiseen eläytyen. Tilat muodostuvat kodikkaan oleskelutilan ympärille. Toimivat aputilat lähtevät siitä, että erilaisiin toimintoihin tarvitaan erilaisia tiloja. Saunaosasto on omassa rauhassaan ja kodinhoitotilat omassaan. Saunan ystäville Kaarna tarjoaa aivan uutta. Taloon on mahdollista yhdistää puulämmitteinen pihasauna, materiaaliksi voi valita jopa hirren. Pihasaunaa on helppo käyttää talon sisällä sijaitsevista pesu- ja pukeutumistiloista.
Tutustu lisää Kastelliin.

















