Kastelli valittiin Vantaan messujen Energiatehokkaaksi ja toimivaksi kodiksi

Rapattu julkisivu viimeistelee ulkonäön.
Motiva Oy ja Talotekniikkateollisuus ry ovat valinneet Vantaan Asuntomessuilla Energiatehokas ja toimiva koti –taloksi Kastelli-Talot Oy:n kohteen 39 Kastelli. Valinnalla haluttiin nostaa esiin hyvää, kestävää, energia- ja kustannustehokasta nykyrakentamista. Kastellin valinnassa korostui erityisesti hyvä kokonaisuus, tilojen tehokkuus sekä kestävät ratkaisut.
Tehokas tilankäyttö
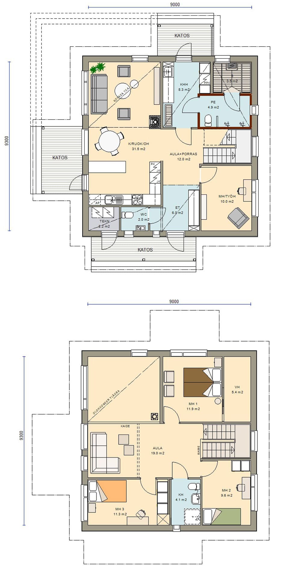
Kastelli-Talot Oy:n Kastelli on tilankäytöltään tehokas, huoneistoalaltaan 145 m² talo, joka sopii pienellekin tontille, mutta riittää kuitenkin tiloiltaan 4-5 asukkaalle. Kastelli on energialuokkaa B, sen E-luku on 118 ja talon lämmitetty nettoala on 153 m².
"Talon ulkoiset mittasuhteet ovat omiaan käytönaikaiselle energiatehokkuudelle ja pohjaratkaisu on myös investointina suhteellisen kustannustehokas. Myös muuttovalmis-toimitussisällön kustannus on Kastellissa kohtuullinen ja näin lähempänä tavallisen kuluttajan kukkaroa", toteaa asiantuntija Sami Seuna Motiva Oy:stä.




5 h + k + s, huoneistoala 145 m²
Yhdistetty keittiö, ruokailu- ja olohuone muodostavat yhtenäisen tilan. Valoisa ja korkea olohuone tuo lisää tilantuntua. Keittiöstä on kätevä yhteys terassille. Alakertaan on sijoitettu myös yksi makuuhuone sekä kodinhoito- ja saunatilat.
Reilun kokoiset portaat johtavat yläkertaan. Lepotaso portaissa helpottaa liikkumista tuomalla myös turvallisyytta porraskulkuun. Ikkuna tuo portaikkoon valoisuutta.
Yläkertaan saavuttaessa avautuu reilun kokoinen aulatila. Yläkerrassa on kolme makuuhuonetta ja wc-/kylpyhuone. Vanhempien makuuhuoneen "walk-in-closet" tuo ripauksen luksusta.
Rapattu julkisivu viimeistelee ulkonäön.

Energiatehokkuus näkyy rakenteissa ja tekniikassa
Kastellin lämmitysmuotona on kaukolämpö, joka asuntomessualueelle tulee energiatehokkaasta sähkön ja lämmön yhteistuotantolaitoksesta. Energiatehokkuus näkyy rakenteissa ja tekniikassa: yläpohjassa U-arvo on vain 0,07, ilmanvaihdon lämmöntalteenoton vuosihyötysuhde on korkea, 75 prosenttia, ja mitattu ilmanvuotoluku vain 0,8 l/h. Suuri ikkunapinta-ala suunnattuna erityisesti lounaaseen tuo paljon auringon lämpöenergiaa sisätiloihin vuositasolla. Ylilämpöä rajoittaa yöaikaan ilmanvaihtokoneen yöviilennystoiminto, joka tehostaa ilmanvaihtoa ilman viiletessä.
"Tehokas lämmöntalteenotto on yksi olennaisista ratkaisuista, joilla rakennuksen energiatehokkuutta voi parantaa", korostaa asiantuntija Paula Porkola Talotekniikkateollisuus ry:stä. "Kastellissa suuret ikkunat voivat kesäaikaan lämmittää sisätiloja jopa liikaakin, joten taloon olisi syytä vielä asentaa tehokas aurinkosuojaus ylilämpenemistä hillitsemään."
Kastellissa valaistus on suurelta osaltaan LED-tekniikkaa, joka on pitkäikäinen ja käytössä erittäin energiatehokas. Puu talon runkomateriaalina toimii myös hiilen varastona, on kotimaista raaka-ainetta, ja 100 prosenttisesti uusiutuvaa.















