Fiksu valinta ensimmäiseksi kodiksi

Verso on koti, jossa on kaikki, mitä tarvitset vaan ei mitään ylimääräistä. Talomalli soveltuu muunneltavuutensa ansioista erilaisiin elämäntilanteisiin - kodiksi eri-ikäisille pariskunnille ja perheille. Versosta saa myös oivallisen kakkoskodin tai loma-asunnon.
Fiksuin alku
Omakotitaloja ajatellaan kalliiksi ja hankaliksi rakentaa. Myös talon koko ja siinä olevat tilat mietityttävät. Kastellin Verso on edullinen, koska talon kustannukset on saatu alas perustuen innovatiiviseen suunnitteluun ja tehokkaaseen toteutukseen. Kustannusten karsimisella pääsee edullisesti omakotiasumisen alkuun.
Suunnittelu ratkaisevassa osassa sekä sisällä..
Kaikki Kastelli-malliston talojen ulkoseinät on mitoitettu niin, että rakentaminen on nopeaa ja helppoa. Kotisi on lämmin ja vedoton - tuttua Kastellin laatua.
Sisäpuolen suunnittelussa on kiinnitetty vesipisteiden sijoitteluun. Lähellä toisiaan olevat vesipisteet minimoivat putkien pituudet sekä asennustyöajat. Ilmanvaihtoputket integroidaan kattorakenteisiin eristeiden alapuolelle.
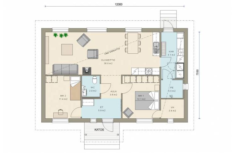
Tilasuunnittelussa on otettu huomioon tilatarpeet: saunaa ei lähtökohtaisesti ole, vaan tila on valittavissa joko saunaksi, pukeutumishuoneeksi tai vauvanurkkaukseksi - perheen tarpeen mukaan. Myös kolmas makuuhuone on mahdollinen. Verso kasvaa tarvittaessa myös pituutta. Näin huoneisiin saadaan lisäneliöitä ja -tilaa.
Halutessa takka toimii lisälämmönlähteenä sekä tunnelman luojana.
...että ulkona
Kotitalon katon muodon ja julkisivun tyylin voit itse valita. Haluatko klassisen, Cityn vai Modernin kodin?
Oma piha ja terassi ovat tärkeitä. Versossa on ovi terassille, jossa voit grillata tai vaikkapa nukuttaa vauvaa.
Talo kasvaa juuri sinulle sopivasti eikä siinä ole mitään turhaa. Suunnittele oma Versosi ja ihastu!












